[185]北島町鯛浜字西ノ須

- [185]
- 徳島県板野郡鯛浜字西ノ須26-11、26-17
- 価 格
- 980万円(税込)
- 構 造
- 木造二階建て
- 築年月
- 1992年3月
- 土地面積
- 114.41㎡[34.60坪]
- 建物面積
- 96.88㎡[29.30坪]
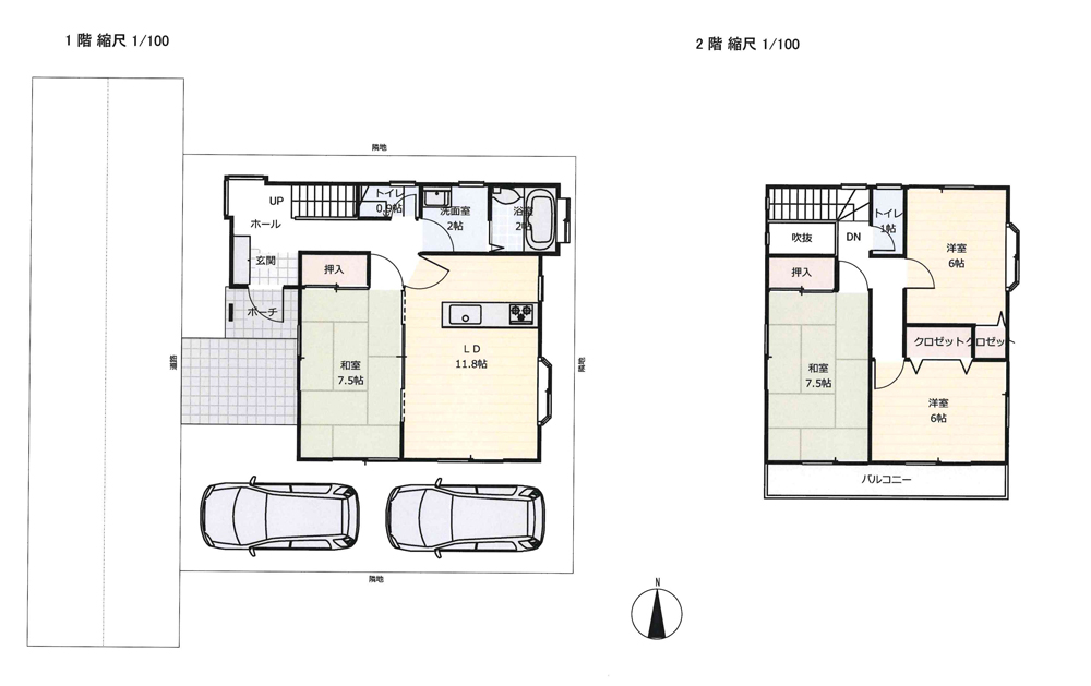
- 間取り
- 4DK
- 駐車場
- 2台
- 都市計画
- 市街化区域
- 用途地域
- 準住居地域
- 建ペイ率
- 60%
- 容積率
- 160%
- 接 道
- 西側4m幅舗装道路
- 教 育
- 北島南小学校・北島中学校
- 交 通
- フジグラン北島バス停まで徒歩4分
- 取引態様
- 仲介
- 備 考
- ※日当たり良好
- お問い合わせ
- 080-3168-5781(岡本)
外 観

間取図



